1-к квартира, 21/25 эт., 45м²

Рязань, ул Шереметьевская, д. 12 к 4
Продается шикарная квартира в сданном доме ЖК Космос площадью 46кв.м

Жилой комплекс комфорт класса

Квартира с современной планировкой Евро-2:
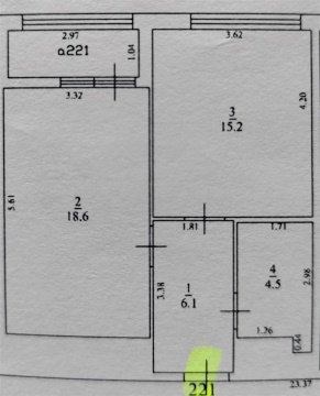
Большая кухня-гостиная 18.6 кв.м с выходом на балкон
Спальня правильной формы с высоким окном 15.2 кв.м
Ванная комната с зоной теплого пола 4.5 кв.м
Прихожая 6.1 кв.м с местом под шкаф

Преимущества квартиры:
-Индивидуальное отопление: установлен надежный котел Ariston
-Высокие потолки 2.75м, которые визуально расширяют пространство
-Цена значительно ниже, чем у застройщика, без ожидания сроков сдачи.

В квартире дорогие широкоформатные окна Rehau, открывающие потрясающий вид на пойму реки Ока.
Дорогая входная дверь обеспечивает надежность и безопасность.
Выполнена отделка помещений под поклейку обоев и укладку пола, что даст Вам быстро и с минимальными вложениями сделать ремонт под себя.

Двор без машин, есть отдельная выделенная парковка со шлагбаумом.
Также во дворе дома большая современная детская площадка.

При покупке с нами вы получаете:
- Юридическое сопровождение на всех этапах сделки
- Помощь в получении положительного одобрения ипотеки

Показ в удобное для Вас время, ключи на руках.
Не упустите уникальную возможность приобрести эту замечательную квартиры!
Тип предложения Продам
География Рязань, Рязанская область
Тип объекта
Вторичный рынок
Адрес
ул Шереметьевская, д. 12 к 4
Комнат
1
Планировка
Стандартная
Общая площадь
45,91 м2
Жилая площадь
15,20 м2
Площадь кухни
18,60 м2
Этаж
21
Этажей в доме
25
Высота потолков
2,75 м
Санузел
Совмещенный
Балкон
Лоджия
Условия сделки
ипотека

Все ваши сообщения мы читаем и все пожелания учитываем, но, к сожалению, ответ не гарантируем.

Если вы расчитываете получить ответ, не забудьте заполнить это поле.
Отправить

Сообщение будет отправлено на электронную почту автора объявления. Ваш электронный адрес будет ему доступен для ответа.

Отправить
Отправить