м2
соток

Дом 150м², участок 9,3 сот.

Подходит под ИПОТЕКУ 3% Сельская и 6% Семейная!!!
Кадастровый номер участка на котором расположен дом 62:15:0060426:2198

Продам дом в новом коттеджном поселке с. Дубровичи «New Village» от строительной компании «GoodRich», которая известна своим качеством, современным и стильным подходом, а так же продуманными проектами до мелочей!
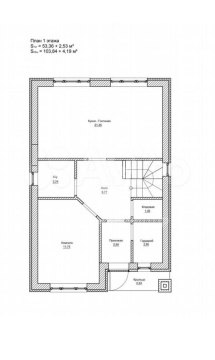
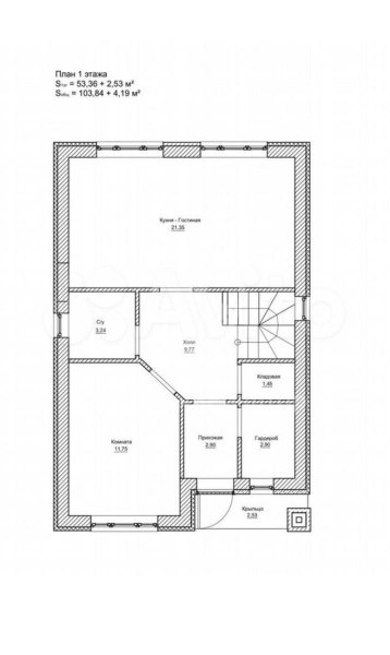
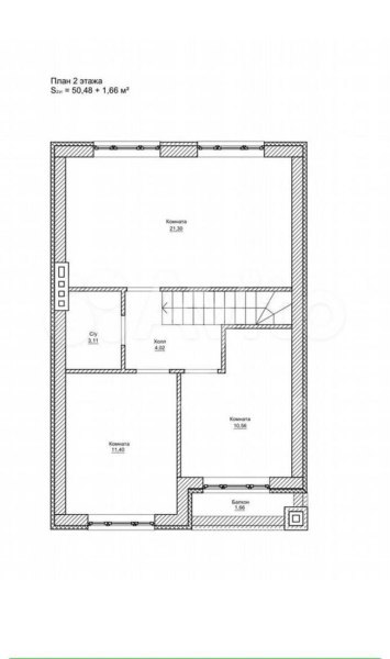
В доме 4 комнаты, просторные санузлы, два холла, подсобное помещение, гардеробная, балкон, большая гостиная 31 кв.м. !!!Панорамное остекление окон (двойной стеклопакет, профиль 70 мм) Кровля мягкая черепица Shinglas. Тип перекрытия- железобетонные плиты ПНО. Стены выполнены из газосиликатного блока с фактурной штукатуркой на фасаде. Фундамент- ленточный монолитный армированный.

Современный Коттеджный посёлок расположен в Рязанской области с. Дубровичи
- всего в 15 минутах езды на машине до центра г. Рязани !
НЕТ ЕЖЕМЕСЯЧНЫХ ВЗНОСОВ
Назначение земель ИЖС
Коммуникации
Комфортный подъезд к участкам

Показ в удобное время!
Тип предложения Продам
География село Дубровичи, Рязанская область, Рязанский район
Вид участка
Земли поселений (ИЖС, ЛПХ)
Площадь дома
150,00 м2
Площадь участка
9,30 соток
Коммуникации
отопление, водопровод, канализация, электроснабжение, газ
Дополнительно
возможность ПМЖ
Удобства
туалет
Условия сделки
ипотека

Все ваши сообщения мы читаем и все пожелания учитываем, но, к сожалению, ответ не гарантируем.

Если вы расчитываете получить ответ, не забудьте заполнить это поле.
Отправить

Сообщение будет отправлено на электронную почту автора объявления. Ваш электронный адрес будет ему доступен для ответа.

Отправить
Отправить